Contacto
Series
B1.8233

Bridas de sujeción tipo bloque

sin/con función «Fail-Safe»
doble efecto, presión máx. de servicio 70 y 100 bar
Bridas de sujeción tipo bloque
Descargas
Hoja del catálogo
Instrucciones de servicio
Solicitar producto
Consultar precios y disponibilidad
Ir a Carrlane.com
Informaciones de la serie
Descripción
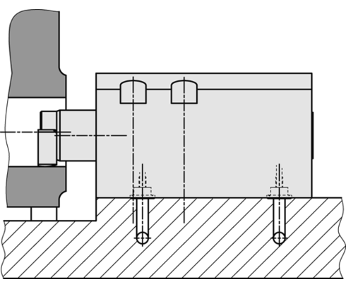
B 1.8233 Bridas de sujeción tipo bloque sin/con función «Fail-Safe»

Función «Fail-Safe»
Se mantiene la fuerza de sujeción íntegra, tanto en caso de caída de presión como de pérdida total de presión. Esto se consigue mediante el apriete con autorretención del bulón de sujeción.

Aplicación
Las bridas hidráulicas tipo bloque de sujeción son particularmente apropiados para el blocaje de piezas a mecanizar que necesitan un grán espacio libre para el mecanizado y para aplicaciones donde las bridas de sujeción y las garras giratorias están demasiado grandes. Particularmente para el mecanizado de 5 caras la altura de montaje mínima de las bridas tipo bloque de sujeción y la posibilidad de sumergir y de blocar en orificios o taladros horizontales están particularmente ventajosas.
La brida de sujeción tipo bloque con función «Fail-Safe» se utiliza de preferencia sobre paletas de sujeción que se desconectan después de la operación de sujeción del generador de presión. La presión mínima de servicio de 70 ó 100 bar permite la conexión directa a la hidráulica de baja presión de muchas máquinas de mecanizado.

Artículos (4)
Cargando…
forma del cuerpo
ejecución tipo bloque (4)
Fail-Safe Funktion
carrera de sujeción [mm]
fuerza máx. de sujeción [kN]
tipo
brida tipo bloque de sujeción (4)
funcionamiento
doble efecto (4)
presión máx. de servicio [bar]
juntas
NBR (4)
conexiones hidráulicas
orificios roscados y conexión por junta tórica (4)
control de posición
sin (4)
campo de presión
palanca de sujeción
con tornillo de presión (4)
rascador metálico
sin (4)
Referencia Datos CADtipofuncionamientopresión máx. de servicio [bar]juntas
Referencia
Datos CAD
tipo
brida tipo bloque de sujeción
funcionamiento
doble efecto
presión máx. de servicio [bar]
70
juntas
NBR
Propiedades
Referencia
Datos CAD
tipo
brida tipo bloque de sujeción
funcionamiento
doble efecto
presión máx. de servicio [bar]
70
juntas
NBR
Propiedades
Referencia
Datos CAD
tipo
brida tipo bloque de sujeción
funcionamiento
doble efecto
presión máx. de servicio [bar]
100
juntas
NBR
Propiedades
Referencia
Datos CAD
tipo
brida tipo bloque de sujeción
funcionamiento
doble efecto
presión máx. de servicio [bar]
100
juntas
NBR
Propiedades
Cargando…
Referencia
tipo
brida tipo bloque de sujeción
funcionamiento
doble efecto
presión máx. de servicio [bar]
70
juntas
NBR
conexiones hidráulicas
orificios roscados y conexión por junta tórica
forma del cuerpo
ejecución tipo bloque
control de posición
sin
campo de presión
baja presión
palanca de sujeción
con tornillo de presión
carrera de sujeción [mm]
6
fuerza máx. de sujeción [kN]
13.5
Fail-Safe Funktion
sin
rascador metálico
sin
Referencia
tipo
brida tipo bloque de sujeción
funcionamiento
doble efecto
presión máx. de servicio [bar]
70
juntas
NBR
conexiones hidráulicas
orificios roscados y conexión por junta tórica
forma del cuerpo
ejecución tipo bloque
control de posición
sin
campo de presión
baja presión
palanca de sujeción
con tornillo de presión
carrera de sujeción [mm]
6
fuerza máx. de sujeción [kN]
7.5
Fail-Safe Funktion
con
rascador metálico
sin
Referencia
tipo
brida tipo bloque de sujeción
funcionamiento
doble efecto
presión máx. de servicio [bar]
100
juntas
NBR
conexiones hidráulicas
orificios roscados y conexión por junta tórica
forma del cuerpo
ejecución tipo bloque
control de posición
sin
campo de presión
alta presión
palanca de sujeción
con tornillo de presión
carrera de sujeción [mm]
8
fuerza máx. de sujeción [kN]
31
Fail-Safe Funktion
sin
rascador metálico
sin
Referencia
tipo
brida tipo bloque de sujeción
funcionamiento
doble efecto
presión máx. de servicio [bar]
100
juntas
NBR
conexiones hidráulicas
orificios roscados y conexión por junta tórica
forma del cuerpo
ejecución tipo bloque
control de posición
sin
campo de presión
alta presión
palanca de sujeción
con tornillo de presión
carrera de sujeción [mm]
8
fuerza máx. de sujeción [kN]
18.5
Fail-Safe Funktion
con
rascador metálico
sin
Accesorios (3)
Referencia Datos CAD Descripción
Referencia
Datos CAD
Descripción
Junta tórica 8 x 1,5 mm, NBR según la hoja del catálogo B1.5091
Referencia
Datos CAD
Descripción
Tornillo de cierre VSD G1/4 A máx. 400 bar, según la hoja del catálogo F9.300
Referencia
Datos CAD
Descripción
Tornillo de cierre VSD G1/8 A máx. 400 bar, según la hoja del catálogo F9.300
Cargando…