Mordazas de sujeción céntricas – Power Clamp Centric
tamaños de 64 y 100 mm, fuerza máx. de sujeción: 4,0-20,3 kN
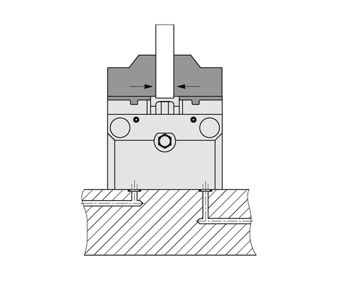
Aplicación
Estas mordazas de sujeción céntricas accionadas neumática o hidráulicamente pueden posicionar y sujetar piezas de trabajo con una exactitud de ± 0,005 mm.
Son idóneas para la fabricación en serie de piezas de trabajo de precisión en dispositivos de fijación individuales o múltiples. La función de cilindro de doble acción posibilita la sujeción tanto interior como exterior de piezas de trabajo.
Descripción
Las carcasas de las mordazas de sujeción céntricas tienen forma cuadrada. Esto permite montar un pistón de sujeción de gran diámetro, que posibilita una fuerza de sujeción extraordinariamente elevada en la mordaza de sujeción céntrica neumática. La fuerza del pistón se transmite sin juego, de forma sincrónica y céntrica, a las dos mandíbulas de base.
Todas las mordazas de sujeción céntricas cuentan con una limitación interna del caudal.
Aire de bloqueo
La protección más segura contra la penetración de líquidos y partículas de suciedad es la aplicación de aire de bloqueo libre de aceite y agua, con una ligera sobrepresión de máx. 1 bar.
Ventajas
● Ahorra espacio gracias a su diseño compacto
● Rigidez muy elevada
● Desgaste reducido gracias a las superficies endurecidas
● Precisión de repetición de la sujeción 0,005 mm
● Apta para la sujeción interior y exterior
● Conexión embridada y con tubo rígido de serie
● Conexión de aire de bloqueo de serie
- Conexión para lubricación central
- Control eléctrico de las posiciones finales
- Control neumático de contacto con la pieza de trabajo
- Sistema de mandíbulas de sujeción rápida
- Adaptación del punto cero
| Referencia | Datos CAD | ejecución | funcionamiento | presión máx. de servicio [bar] | forma del cuerpo | |
|---|---|---|---|---|---|---|
|
Referencia
|
Datos CAD
|
Propiedades
| ||||
|
Referencia
|
Datos CAD
|
Propiedades
| ||||
|
Referencia
|
Datos CAD
|
Propiedades
| ||||
|
Referencia
|
Datos CAD
|
Propiedades
|
| Referencia | Datos CAD | Descripción |
|---|---|---|
|
Referencia
|
Descripción
Junta tórica 4 x 1,5 mm
según la hoja del catálogo B1.9470
|
|
|
Referencia
|
Descripción
Junta tórica 5 x 1,5 mm - FKM
según la hoja del catálogo F9.732
|
|
|
Referencia
|
Descripción
Grasa lubricante especial, cartucho de 500 g
La grasa lubricante especial se caracteriza por las siguientes propiedades:
- Máxima capacidad lubricante
- Excelente resistencia a la presión
- Prevención del “stick-slip” (deslizamiento a sacudidas)
- Coeficientes de fricción bajos y constantes,
especialmente en caso de presión de contacto elevada
- Confiere propiedades de funcionamiento de emergencia
- Buena resistencia a la corrosión
según la hoja del catálogo H4.400
|
|
|
Referencia
|
Descripción
Tapón ciego inclinado Ø 11,3 mm
para tamaño 64
según la hoja del catálogo H4.400
|
|
|
Referencia
|
Descripción
Tapón ciego inclinado Ø 15,3 mm
para tamaño 100
según la hoja del catálogo H4.400
|
|
|
Referencia
|
Descripción
Juego de juntas para
Mordazas de sujeción céntricas – Power Clamp Centric
tamaño 64, de accionamiento neumático
según la hoja del catálogo H4.400
|
|
|
Referencia
|
Descripción
Juego de juntas para
Mordazas de sujeción céntricas – Power Clamp Centric
tamaño 100, de accionamiento neumático
según la hoja del catálogo H4.400
|
|
|
Referencia
|
Descripción
Juego de juntas para
Mordazas de sujeción céntricas – Power Clamp Centric
tamaño 64, de accionamiento hidráulico
según la hoja del catálogo H4.400
|
|
|
Referencia
|
Descripción
Juego de juntas para
Mordazas de sujeción céntricas – Power Clamp Centric
tamaño 100, de accionamiento hidráulico
según la hoja del catálogo H4.400
|
|
|
Referencia
|
Datos CAD
|
Descripción
Juego (2 piezas) piezas brutas de mandíbulas de sujeción para
Mordazas de sujeción céntricas – Power Clamp Centric
tamaño 64
material: 16MnCr5 blando
tornillos de fijación incluidos en el volumen de suministro
según la hoja del catálogo H4.400
|
Aproveche nuestra zona de login gratuita:
- Descarga de datos CAD
- Descarga de instrucciones de servicio
¡Bienvenido de nuevo! Inicie sesión con su cuenta de usuario ya existente.'








